- Главная>
- Дом Верба
Дом Верба

Дом Верба под ключ.
Участок №91
– площадь: 11,9 сотки
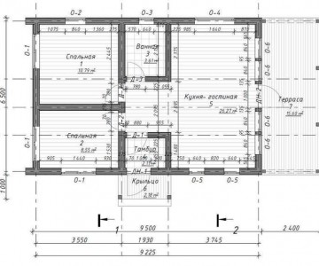
Дом
– площадь: 63 м2, с верандой - 93 м2
– комплектация: «под ключ»
две изолированные спальни,
две ванные комнаты,
кухня-гостиная,
открытая терраса.
– Сроки строительства - 6 мес.
Коммуникации
– Поселковый водопровод, электричество 15 кВт, интернет, канализация (септик). Дорога до участка.
– Коммуникации рассчитываются отдельно.
Стоимость дома с земельным участком 9 300 000 руб.


