- Главная>
 - Дом Ракита.
 
Дом Ракита.

Дом Ракита.
Участок №122
– площадь: 11,97 сотки
– благоустройство: дорожка, парковка, зона отдыха с мангалом
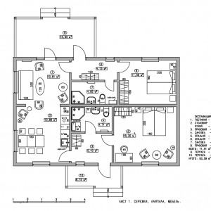
Дом
– площадь: 71,5 м2, с террасой - 94 м2
– комплектация: «под ключ»
две спальни с двуспальными кроватями,
две ванные комнаты с душевыми кабинами,
полностью оборудованная кухня и очень уютная гостиная,
открытая терраса с мангальной зоной.
– дом полностью меблирован и обустроен всем необходимым
Коммуникации
– поселковый водопровод, электричество, интернет, канализация (септик), генератор.
Стоимость дома с земельным участком 14 200 000 руб.


