- Главная>
- Копия 5a старая

Дом Квадро со вторым светом в Велегож Парке, на уч. 5A
Дом 74 кв. м. на участке 10,19 соток
Просторная гостиная с кухней, две полноценные спальни, которые расположены на разных этажах. У спальни на втором этаже свой отдельный санузел.
В гостиной высокие окна и второй свет.
Коммуникации:
Поселковый водопровод, заведен под дом. Газ в поселке, до границы бесплатно. Электричество 15 кВт. Оптоволокно по границе участка.
Участок прямоугольной формы. Забора нет. Высажены ели, закрывающие участок от дороги. Также высажены дубы, калина, сизые ели.
Инфраструктура:
большой ТЦ в 4х минутах пешком, аптека, развлекательный центр. Конный клуб в 1 км, теннисные корты, пляжный волейбол, фермерские продукты, ресторан Берлога, 2 отеля. В 12 км Заокский, там круглосуточные магазины, школы, школа Искусств. В 6 км река Ока с пляжем и дом -музей художника Поленова. Поленов похоронен в д.Бехово, рядом с церковью. Кстати, деревня Бехово признана одной из лучших туристических деревень мира.
Можно получить ипотеку:
– Сельская ипотека (ставка 3%)
– Льготная ипотека ДОМ.РФ (ставка 8%)
Дом не зарегистрирован. В этом статусе под него могут дать сельскую ипотеку по 3% годовых. Или собственники зарегистрируют собственность в течении 2х недель, но ипотека под 3% станет невозможна.
Подробности уточняйте у менеджеров.
3D тур по дому Квадро тут
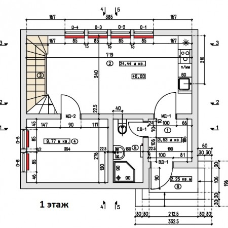
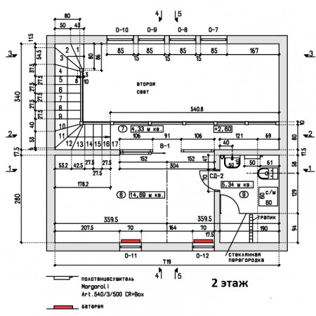
Планировка:


Комплектация:
Дом каркасный свободной планировки, контур закрыт, перекрытий еще нет на жб сваях. Внешние стены: боковые – отделаны профнастилом вертикально, лицевые и задний фасад отделан двойной строганной доской вертикально в 2 раза с покраской. Стеклопакеты Rexau, 2хкамерные, фурнитура Maco. Металлическая входная дверь белого цвета. Кровля- профнастил. Открытое крыльцо, настил без ограждений, цоколь с окраской. По плану 2 с/у: на 1 и 2-м этаже.
В Велегож Парк есть подрядчики, готовые рассчитать стоимость объекта.