- Главная>
- Вилла «Три царя» в Велегож Парке Скрытово

Вилла «Три царя» в Велегож Парке Скрытово
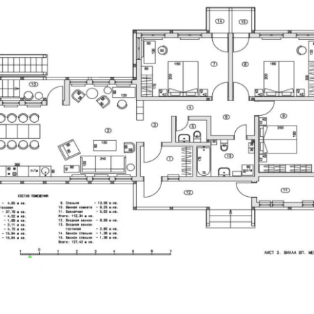
149,2 кв.м., на участке 20 соток
Велегож Парк Скрытово - в 100 км от МКАД по Симферопольскому шоссе (трасса М2). В 3 км находится ж/д станция Тарусская (Курское направление), в пешей доступности магазины, аптеки. Посёлок окружен сосновым лесом с множеством грибов и ягод. В 10 мин езды находится река Ока с песчаными пляжами, музей-заповедник Поленово с шикарным парком, смотровой площадкой. На пароходике можно добраться до г. Тарусы.
Теплая, светлая вилла для круглогодичного проживания расположена в живописном месте на берегу пруда. В вилле – кухня-гостиная (37,78 кв. м), 3 просторные изолированные спальни с двуспальными кроватями, рабочим местом, шкафом и зоной отдыха для уединения, 2 санузла с душевой кабиной.
Вокруг – развитая инфраструктура: ресторан «Берлога», площадка для собак, конный клуб «Велегож», магазин, площадка для пляжного волейбола/футбола, теннисный корт.
Фасады виллы напоминают о садовых павильонах конца 19 века, с множеством резных деревянных деталей. Перед виллой - деревянная палуба со столом, креслами и мангалом.
К вилле подведены коммуникации: центральный водопровод, электричество 15 кВт, оптоволоконный интернет, канализация (септик).
Назначение земли: земли населенных пунктов, для ведения личного подсобного хозяйства.
Продается за 22 000 000 руб.
Звоните прямо сейчас!
(495)132-
Не нашли того, что искали? Оставьте свой номер телефона и наш менеджер Вам перезвонит
Ваша заявка принята
Закрыть

Не нашли того, что искали? Оставьте свой номер телефона и наш менеджер Вам перезвонит
Ваша заявка принята
ЗакрытьПланировка:
