- Главная>
- Дом Секстет со вторым светом и террасой в КП Открытово, уч. 4

Дом Секстет со вторым светом и террасой в Велегож Парке, на уч. 4
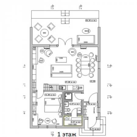
Дом 130,5 кв. м. на участке 26,32 соток
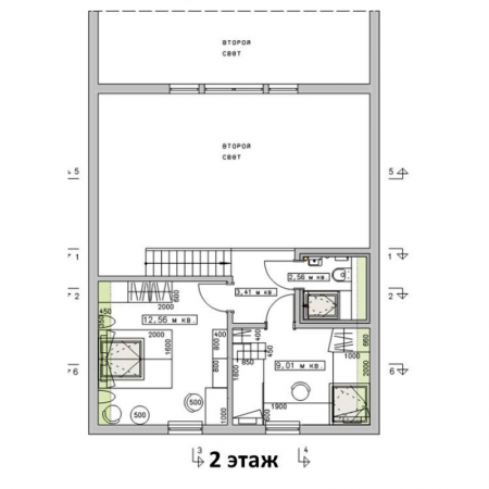
Просторная гостиная с кухонной зоной, и высокими окнами до потолка. Здесь помещаются три отдельные комнаты: одна на первом этаже и две на втором. В этом доме своя небольшая электрическая сауна, в которую можно пройти через ванную на первом этаже.
Дом расположен в поселке Велегож Парк возле сёл Велегож, Бехово и музея Поленово в стародачном курортном месте с удивительной природой!
К дому подведены коммуникации: вода, электричество, оптоволоконный интернет. Газ по госпрограмме.
К посёлку ведёт асфальтовая дорога.
Назначение земли: – земли населенных пунктов, для ведения личного подсобного хозяйства.
Участок принадлежит к деревне, это значит, что можно прописаться, использовать материнский капитал на покупку дома или воспользоваться Сельской Ипотекой под 3% годовых.
Посёлок с хорошо развитой инфраструктурой. На территории есть продуктовые магазины, теннисный корт, конная дача, два пруда, ресторан с бесплатным WIFI, два отеля, парки для пеших прогулок около 650 гектар прекрасного леса с множеством грибных мест.
В нескольких минутах езды на машине от посёлка находятся два пляжа на берегу Оки: один возле Поленово, второй возле села Велегож. Также рядом протекают реки Скнига, Лебосня, Тушига.
За целебный воздух и неповторимые холмистые пейзажи эти места называют «Русской Швейцарией».
В нескольких километрах от коттеджного посёлка Велегож Парк находится музей-усадьба художника Поленова, а в селе Велегож действует Богородице-Рождественский храм. Неподалёку также находятся храмы Троицы Живоначальной в Бёхово, Рождества Пресвятой Богородицы в селе Велегож и храм святого Дмитрия Ростовского в Дмитровском.
Добраться до поселка вы с легкостью можете как на личном автомобиле, так и воспользоваться экспресс - поездом, идущим с Курского вокзала до станции Тарусская. Поезд в пути всего 1 час 37 минут, с остановкой лишь в г. Серпухов. В пятницу вечером можно без пробок за полтора часа из центра города доехать до Тарусской, а в понедельник утром вернуться в Москву и отправиться сразу на работу, выпив чашечку утреннего кофе уже в вагоне поезда, в мягком кресле. Приобрести билеты можно заранее, через сайт РЖД.
Планировка:
Комплектация:
Дом каркасный свободной планировки. Внешние стены: боковые – отделаны профнастилом вертикально, лицевые и задний фасад отделан двойной строганной доской вертикально в 2 раза с покраской. Стеклопакеты Rexau, 2хкамерные, фурнитура Maco. Металлическая входная дверь белого цвета. Кровля- профнастил. Открытое крыльцо, настил без ограждений, цоколь с окраской. По плану 2 с/у: на 1 и 2-м этаже.
* обязательные поля.
А ещё, у нас есть отель Скрытово.Дачи — это уютные скандинавские домики в сосновом лесу. Здесь вы сможете остановиться на ночь или дольше, если не захочется уезжать!
Если возникнут вопросы – звоните или пишите, мы всегда готовы ответить на них.

Сегодня «Марк и Лев» - это ресторан печной кухни, где все блюда готовятся в русской печи. Печь стоит прямо в зале. Гости могут и подсмотреть за процессом приготовления и пообщаться с шеф-поваром лично. Но самое приятное – прислониться спиной к печи! Жар от нее идет живой — в городе так ничто не согреет.
Рядом с рестораном в молодой березой роще мы построили 4 гостевых дома. Это идеальное место, чтобы забыть о городской суете, перезагрузиться, вдохновиться природой и обрести силы на новые свершения.
https://markilevhotel.com/hotel
Вся жизнь поварни «Марк и Лев» вертится вокруг русской печи, которая находится прямо в зале. В печи готовят всю еду, от закусок до десертов. В поварне вы сможете отправиться в гастрономическое путешествие вместе с шеф-поваром Михаилом Лукашонком.
http://markilevhotel.com/
Адрес:
- Тульская область, Заокский район, посёлок Серёжки-на-речке.
- Координаты:
54.593447, 37.606811
- +7 (967) 080-77-78
- отель: hotel@markilev.ru
- поварня: povarna@markilev.ru
Местные фермеры и ремесленники (или их прямые представители) продают здесь только собственную продукцию: овощи, соленья, мясо, рыбу, творог, сыр, хлеб, мёд, пиво.
Май 2018г. — проект фермерского хаба имени Андрея Болотова получил премию АРХИWOOD в номинации «Общественное сооружение». Это ежегодная общероссийская премия за лучшее архитектурное сооружение из дерева.
Вот как прокомментировала ярмарку Елена Макарова, архитектор отеля «Болотов.Дача», обладатель премии АРХИWOOD 2017: «Достойнейшая архитектура, создано уникальное пространство общения и торговли!
Впервые увидела проект на Крымском валу, на выставке архитектурных проектов, была приятно удивлена архитектурному выражению тульских холмов. В реальности побывала в этой новой среде и нашла ее весьма бодрой, приподнимающей настроение и благожелательной человеку.»
Адрес:
- Граница Тульской и Московской областей, 107 км Симферопольского шоссе
- Координаты Ярмарки (Фермерская Ярмарка имени Андрея Болотова) в Гугл-картах:
54.827188, 37.465937
или
RFG8+V9 Панькино, Тульская обл.
- +7 996 432 37 77
Это место для тех, кто сбегает из города за уединением. Здесь только сосны за окном и ничего не помешает отдохнуть.
Дог-френдли
Мы с радостью принимаем гостей с питомцами. С собакой и кошкой можно остановиться в любом домике или номере без доплаты.
Есть, чем заняться
Вокруг обжитые окрестности: рядом ресторан и магазин, два пруда, теннисные корты, волейбольная площадка, клуб верховой езды.
9 домиков на территории
4 отдельных гостевых дома
Это домики: Брусника, Клюква, Черника, Морошка. Весь домик — ваш! В каждом доме есть сауна, а в Бруснике и Клюкве — мини-кухня.
5 домов с номерами
Это домики: Земляника, Малина, Смородина, Ежевика, Голубика. В каждом доме по два номера: двухместный и четырехместный.
Адрес:
- Тульская обл., Заокский район, пос. Велегож-Парк
- +7 960 604 84 41
Наше меню – это уникальное сочетание классических блюд, ставшими любимыми с детства, и авторского взгляда нашего Шеф-повара. Мы так же учли пожелания наших гостей, ведь ничто не мотивирует наше творчество лучше, чем ваши счастливые улыбки и отзывы. Также мы сами печём ароматный хлеб и делаем четверговую соль в настоящей печи. И проводим, уже ставшие доброй традицией, Винные вечера с настоящим сомелье. Это всегда самые приятные эмоции – видеть ваши удивленные взгляды и слышать, что обязательно приедете снова.
Адрес:
- Тульская область, Заокский район, д. Скрипово, д. 75А
- Пн, ср- пт- 11.00-21.00
- Сб- вс- 10.00-21.00
- Вторник выходной.
- +7 961-264-50-04
Калачная расположена на территории фермерской ярмарки имени Андрея Болотова, где нет перекупщиков. Местные фермеры и ремесленники (или их прямые представители) продают здесь только собственную продукцию: овощи, соленья, мясо, рыбу, творог, сыр, хлеб, мёд, пиво. По выходным на ярмарке проходят кулинарные мастер-классы, дегустации, выступления творческих коллективов и другие мероприятия.
Адрес:
- Граница Тульской и Московской областей, 107 км Симферопольского шоссе, фермерская ярмарка имени Андрея Болотова
- Пн: выходной
- Вт-Чт, Вс: с 10:00 до 20:00
- Сб: с 09:00 до 20:00
- +7 996 432 37 77
и социальной жизни вне города.
Дача дает человеку все лучшее для новых идей и свершений.
Здесь свежий воздух, вкусная фермерская еда, просторы для вдохновения, открытое общение с интересными людьми и культурные события.
Под окнами течёт река Скнига, здесь можно гулять по полям и лесам, посещая исторические места и фермерские хозяйства.
За год работы отель стал настоящим культурным центром деревни Дворяниново, здесь постоянно проходят встречи с художниками и музыкантами, звучат концерты и чтения, проводятся лекции на самые различные темы.
В 2016 году отель получил премию АРХИWOOD в номинации «Общественное сооружение».
Адрес:
- Тульская обл., Заокский район, деревня Дворяниново
- +7 903 777 57 34


