- Главная>
- Дом Лахольм
Дом Лахольм

Дом Лахольм свободной планировки.
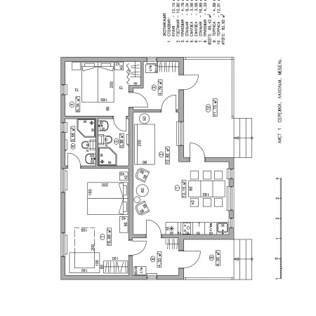
Общая площадь- 82,92 кв.м.
Гостиная- 10,80 кв.м.
Столовая- кухня-12,15 кв.м.
Прихожая-4,79 кв.м.
Спальня- 9,34 кв.м.
Санузел-3,56 кв.м.
Спальня- 16,89 кв.м.
Санузел – 3,56 кв.м.
Прихожая - 4,33 кв.м.
Терраса- 12,51 кв.м.
Терраса- 4,99 кв.м.
Стоимость 2 584 050 руб.
Сроки строительства 35 дней
Планировка:

Комплектация:
Фундамент |
ЖБ сваи 150x150x3000мм-18 шт. |
Обвязка |
Используется брус сечением 150х150мм. Брус монтируется в 1 ряд и обрабатывается огнебиозащитным составом Рогнеда Фенилакс. |
Половые лаги и перекрытие: |
Лаги. Используется обрезная доска размером 50х200мм с шагом не более 60см и обрабатывается огнебиозащитным составом Рогнеда Фенилакс. Перекрытие. Используется обрезная доска размером 50х150мм с шагом не более 60см и обрабатывается огнебиозащитным составом Рогнеда Фенилакс. |
Внешние стены и перегородки: |
Внешние стены – каркасные. Каркас обрабатывается огнебиозащитным составом Рогнеда Фенилакс. Используется: обрезная доска размером 50х150мм. Стены с внешней стороны обшиваются хвойной имитацией бруса камерной сушки класса АВ 16x135мм горизонтально (с монтажом по внешним стенам мембран Ондутис класса А и контробрешеткой). Стены с внутренней стороны не обшиваются (без отделки). Перегородки - каркасные. Обрабатываются огнебиозащитным составом Рогнеда Фенилакс. Используется: обрезная доска размером 50х100мм. Перегородки не обшиваются (без отделки и шумоизоляции). |
Фронтоны: |
Фронтоны – каркасные. Каркас обрабатывается огнебиозащитным составом Рогнеда Фенилакс. Используется: обрезная доска размером 50х150мм. Фронтоны с внешней стороны обшиваются хвойной имитацией бруса камерной сушки класса АВ 16x135мм горизонтально (с монтажом по внешним стенам мембран Ондутис класса А и контробрешеткой). Изнутри (чердак) не обшивается (без отделки). Монтаж вентиляционных решеток на фронтоны. |
Окна: |
ПВХ, двухкамерное, двухстворчатое окно с ПВХ подоконником и металлическим отливом (без москитной сетки и приточного клапана). Профиль ПВХ окон Rehau Blitz 60мм, стеклопакет 32мм. Цвет окон, подоконников и отливов - белый. Окна обналичиваются наличниками 100мм только снаружи. Изнутри не обналичиваются, т.к. нет отделки. |
Дверь: |
Входная металлическая дверь, производство - Россия, размером 0,9x2,0м, цвет - белый. Межкомнатные двери не монтируются. |
Полы и перекрытие: |
Черновой пол – обрезная доска естественной влажности, обрабатывается огнебиозащитным составом Рогнеда Фенилакс. Чистовые полы не монтируются. На перекрытие черновой пол не монтируется. |
Потолки: |
Потолки в каркасном строении не обшиваются. |
Кровля: |
Кровельное покрытие – металлочерепица Satin Classic 0,5, производство Grand Line (без снегозадержателей), включая конек и саморезы для монтажа. Цвет кровли RAL 7004. Свесы кровли (50 см) подшиваются хвойной имитацией бруса камерной сушки класса АВ 16x135мм. |
Утепление и шумоизоляция: |
Пол, стены и потолок в каркасном строении не утепляются. Перегородки без шумоизоляции. |
Стропила: |
Выносные стропила выполнены из обрезной доски размером 50х150мм. Обрешетка выполнена из обрезной доски естественной влажности. Обрешетка не сплошная. Вентилируемое подкровельное пространство (контробрешетка). Стропила и обрешетка обрабатывается огнебиозащитным составом Рогнеда Фенилакс. Монтаж подкровельной мембраны Ондутис класса АМ. Высота до потолка – 2,6м. |
Водосточная система: |
Монтаж ПВХ водосточной системы Docke Lux. Цвет - белый. Вентиляционные шахты не монтируются. |
Цоколь: |
Отделка цоколя (высотой не более 50см) осуществляется строганной доской камерной сушки 20x90мм горизонтально с промежутком 2-3см. Обработка (пропитка) отделки цоколя не осуществляется. По периметру цоколя монтируется металлический отлив, цвет - серый. |
Фасады: |
Обработка (пропитка) фасадов не осуществляется. |
Инженерные коммуникации: |
Монтаж инженерных коммуникаций и подготовка для скрытого монтажа не осуществляются. |
Имитация бруса прибивается оцинкованными гвоздями не в шпунт. Возможно использование имитации бруса различных типоразмеров. Допускается стыковка отделочного материала по всему периметру стен объекта. Обрезная доска естественной влажности имеет допустимую геометрическую погрешность размеров в пределах +10% до -10% от прописанных данных.
Все работы выполняются согласно прилагаемым чертежам и описанию материалов по существующей технологии «Исполнителя». При указании размеров дома, указываются их наружные габаритные размеры.